 
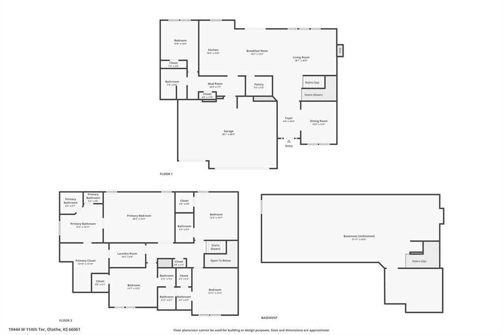
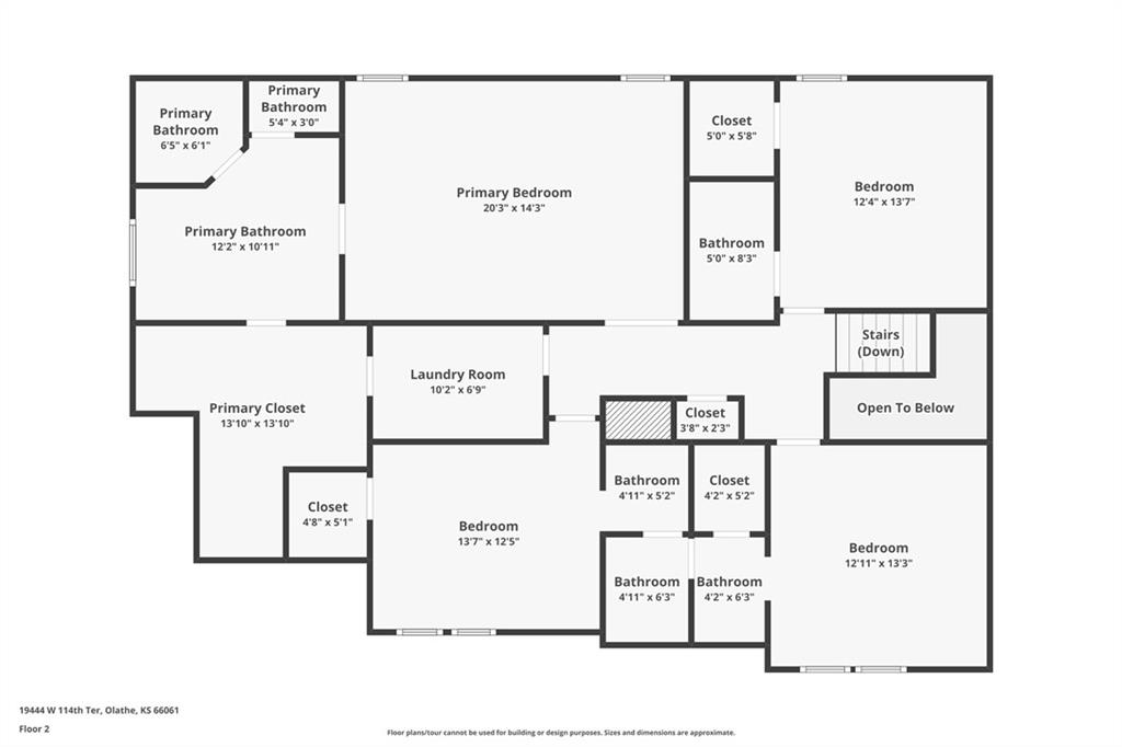
                Introducing the Sydney III by Prieb Homes—a bright, spacious 2-story residence in the exclusive Woodland Hills neighborhood of Olathe, KS. This refined home spans approximately 2,862 sq ft and offers 5 beds, 4 baths, and a three-car garage. Step inside to an inviting great room anchored by a stone fireplace, perfect for gatherings. The chef-inspired kitchen dazzles with stainless appliances, a generous island, walk-in pantry, sleek granite countertops, and a breakfast bar. A quiet flex space on the main level can serve as a home office or guest suite. The luxurious main-floor primary suite features dual vanities, a walk-in shower, and a spacious closet with direct access to the laundry room. Upstairs, vaulted ceilings crown three additional bedrooms, complemented by well-appointed baths. Quality finishes deliver elegance and functionality—from hardwood floors in entry, kitchen, and mudroom to tile floors in baths and laundry. The home also boasts 9’ foundation walls, vaulted ceilings in all bedrooms, an insulated garage, sprinkler system, and covered patio. A full basement is prepped for your vision with plumbing stubbed for an additional bath. Set within a serene yet well-connected community near Woodland Elementary, Prairie Trail Middle, and Olathe Northwest High School—with community playgrounds, trails, and pool nearby—this beautiful new home offers both style and substance. Don’t miss your chance—schedule a tour today!
Copyright © 2025 ELITE Realty.