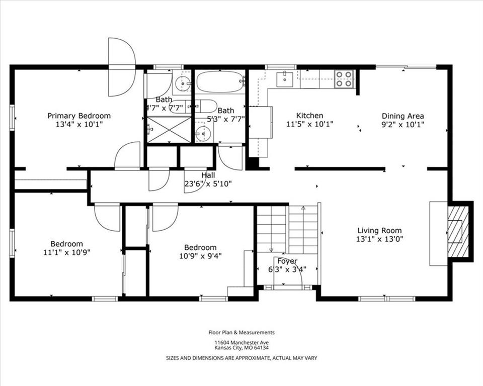
11604 Manchester Avenue, Kansas City, MO 64134

     
  • 3Beds
  •   
  • 2 Baths
  •  
  • 1½ Bath
  •  
  • 1,802Sq Ft
Mortgage Calculator

$239,900
 est. $992/mo

Welcome to this updated 3-bedroom, 2.5-bath home with a 2-car garage, located in a quiet, convenient suburb of Kansas City. This home has been recently refreshed inside and out, making it completely move-in ready. Step inside to newer interior paint and newer carpet throughout, creating a clean and comfortable feel. The kitchen has been upgraded with granite countertops, stainless steel appliances, and plenty of cabinet space—great for everyday living and entertaining. The bathrooms have also been updated with stylish tile work, modern vanities, and fixtures. Outside, the home has a newer coat of exterior paint, newer landscaping, and a large fenced-in backyard that offers privacy and space to relax or entertain. You’ll love the location—close to schools, parks, shopping, and all the everyday amenities. Homes like this don’t last long, so schedule your showing today. *** NO SELLER FINANCING***

Directions
From I-470 & Raytown Rd, head South on Raytown Rd turning right onto Longview Rd. Turn left onto Manchester Ave. Home on right side of street.
Subdivision
Kirkside
City
Kansas City
County
Jackson
Property Type
Residential / Single Family Residence
Listing Updated
Apr 24, 2026 at 10:04am
MLS Number
2574140
Property Tax
$1,096
Home Owners Association
No
Disclaimer
The information displayed on this page is confidential, proprietary, and copyrighted information of Heartland Multiple Listing Service, Inc. (“Heartland MLS”). Copyright 2026, Heartland Multiple Listing Service, Inc. Heartland MLS, Elite Realty and Agent Jo do not make any warranty or representation concerning the timeliness or accuracy of the information displayed herein. In consideration for the receipt of the information on this page, the recipient agrees to use the information solely for the private non-commercial purpose of identifying a property in which the recipient has a good faith interest in acquiring.
The data relating to real estate displayed on this website comes in part from the Heartland Multiple Listing Service database compilation. The properties displayed on this website may not be all of the properties in the Heartland MLS database compilation, or all of the properties listed with other brokers participating in the Heartland MLS IDX program. Detailed information about the properties displayed on this website includes the name of the listing company.
Information is deemed reliable but is not guaranteed.

Copyright © 2026 ELITE Realty.