6944 Southwest Thornton Road, Clarksdale, MO 64430

     
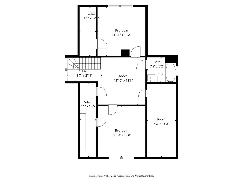
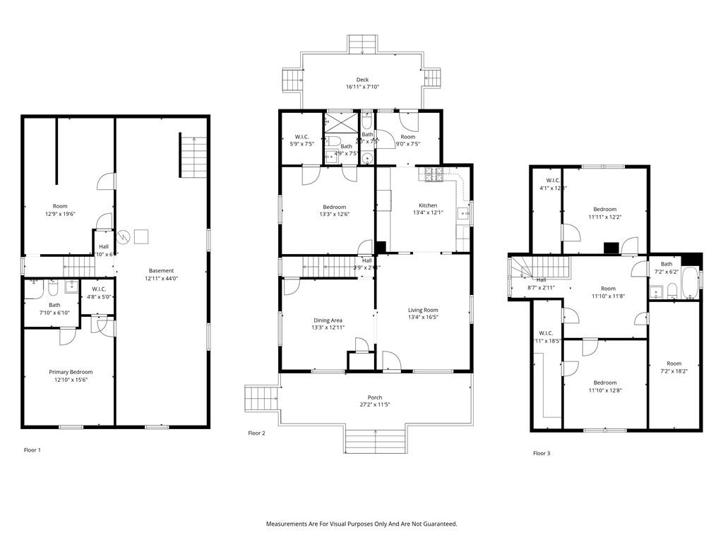
  • 4Beds
  •   
  • 3 Baths
  •  
  • 1½ Bath
  •  
  • 2,700Sq Ft
Mortgage Calculator

$449,000
 est. $1,714/mo

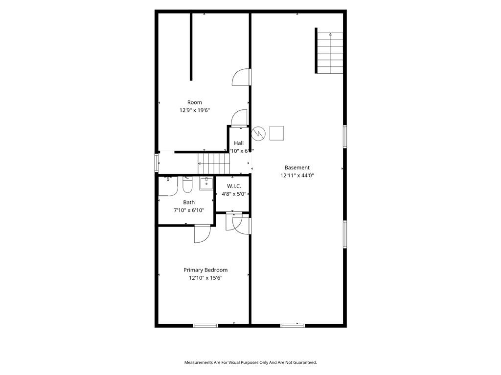
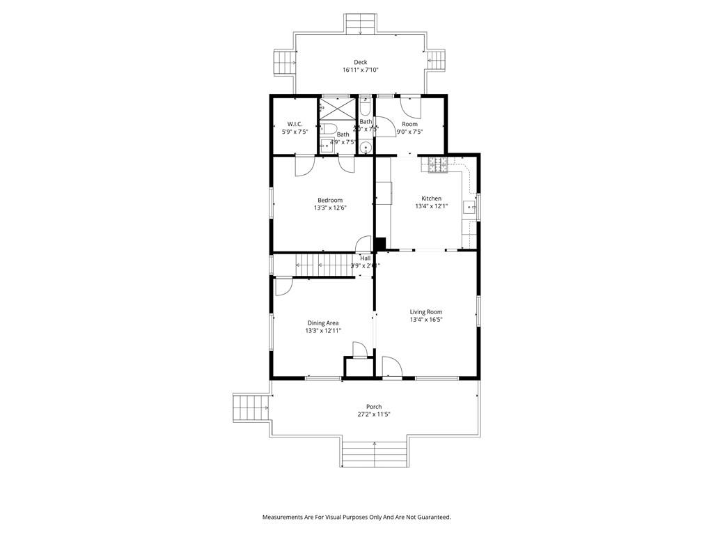
Words on a page and pictures can not do this wonderful home justice. At about 2700ft2 this 4 bedroom, 3.5 bathroom family home is nestled into a picturesque country setting on 5 private acres. Everything with this home is new, including all the things you can’t see. Insulation, electrical, plumbing, septic, hvac etc. A grand front porch with breath taking views. On the main floor you will find a generous living area, master bedroom suite, dining room, mud room with laundry and a half bath and an absolutely gorgeous custom kitchen. The kitchen boasts custom cabinets and some extraordinarily beautiful quartz countertops. Also included top end stainless steel appliances. Up stairs you find 2 spacious bedrooms, walk in closets and a beautiful full bath. Downstairs there is another large bedroom suite and copious climate controlled storage. There is also stairs leading outside. You will find beautiful hardwoods throughout with plush carpet in the bedrooms and ceramic tile in the bathrooms. Outside you’ll find a nice detached 40’x45’ Butler building with dual sliding doors. More than adequate for parking and/or storage. Surrounding the home you’ll enjoy 5 acres of serenity. Partially wooded and teeming with wildlife including deer and turkeys! You’ll not want to miss out on this opportunity to own your own piece of heaven.

Directions
From US Hwy 36 travel north on state route 31. At county Hwy P turn left. Follow P to Thornton rd and turn left. Home is .4 miles and is the first house on the left. Please only park on the graveled areas.
Subdivision
None
City
Clarksdale
County
Dekalb
Property Type
Residential / Single Family Residence
Listing Updated
Oct 26, 2025 at 4:10pm
MLS Number
2578489
Property Tax
$335
Home Owners Association
No
Disclaimer
The information displayed on this page is confidential, proprietary, and copyrighted information of Heartland Multiple Listing Service, Inc. (“Heartland MLS”). Copyright 2025, Heartland Multiple Listing Service, Inc. Heartland MLS, Elite Realty and Agent Jo do not make any warranty or representation concerning the timeliness or accuracy of the information displayed herein. In consideration for the receipt of the information on this page, the recipient agrees to use the information solely for the private non-commercial purpose of identifying a property in which the recipient has a good faith interest in acquiring.
The data relating to real estate displayed on this website comes in part from the Heartland Multiple Listing Service database compilation. The properties displayed on this website may not be all of the properties in the Heartland MLS database compilation, or all of the properties listed with other brokers participating in the Heartland MLS IDX program. Detailed information about the properties displayed on this website includes the name of the listing company.
Information is deemed reliable but is not guaranteed.

Copyright © 2025 ELITE Realty.