11445 W 106th Street, Overland Park, KS 66214

     
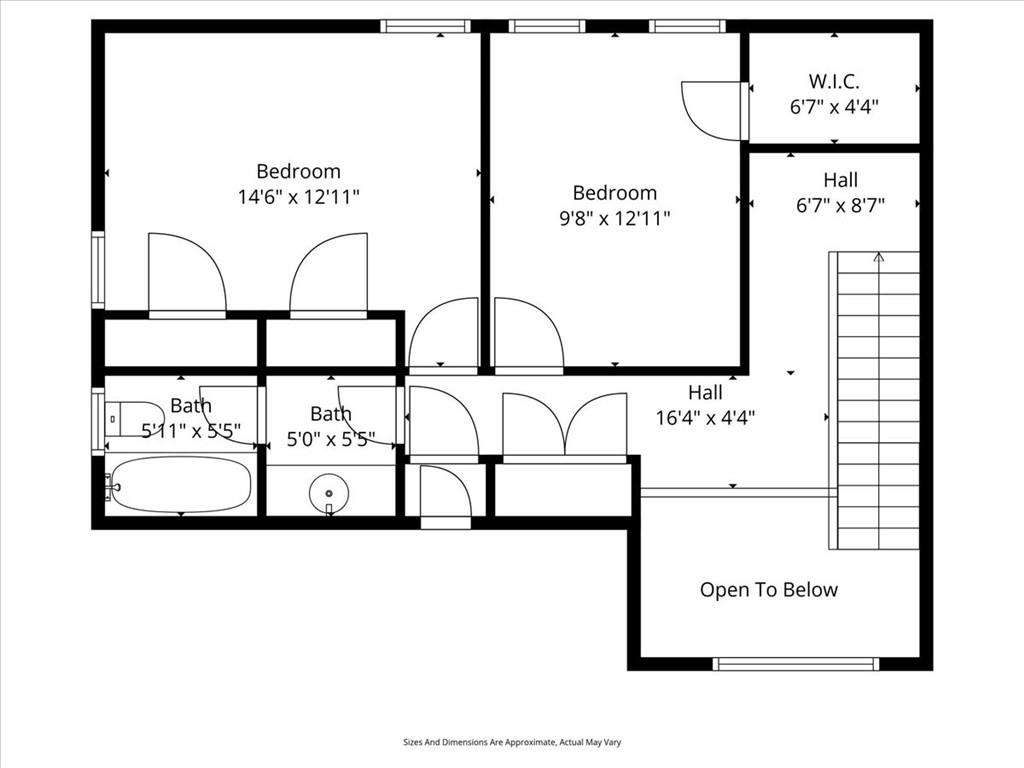
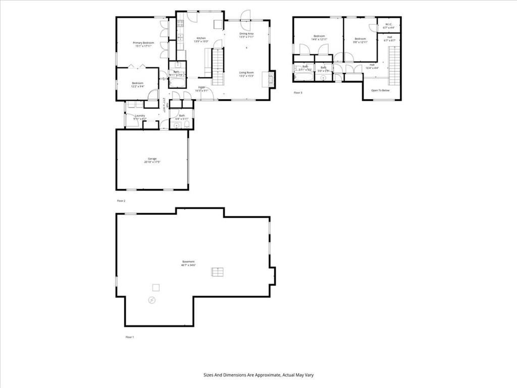
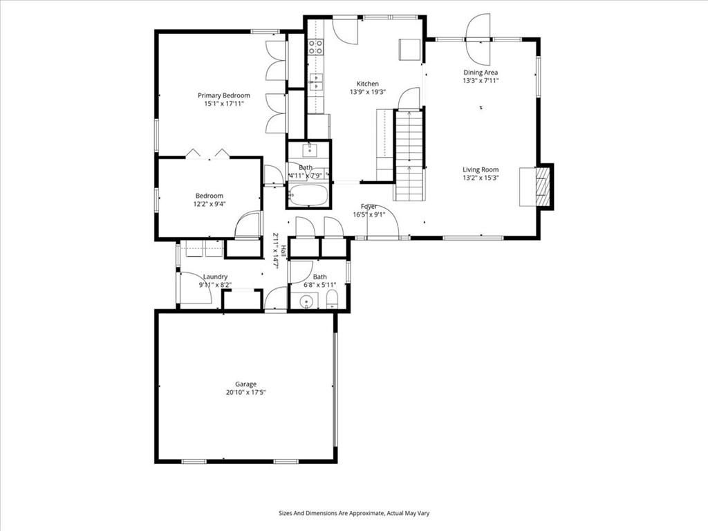
  • 4Beds
  •   
  • 2 Baths
  •  
  • 1½ Bath
  •  
  • 1,926Sq Ft
Mortgage Calculator

$385,000
 est. $1,732/mo

Welcome to Oak Park Manor. This 1.5-story home offers an excellent opportunity to build equity in one of Overland Park’s most convenient locations. The home sits adjacent to the neighborhood micro-park, soon to feature new playground equipment, providing a wonderful outdoor extension for play and relaxation. Inside, you’ll find a spacious family room with all new windows, a brick fireplace, and an open layout that flows into the generous kitchen - perfect for entertaining. The kitchen provides abundant counter space, cabinetry, and room to gather. The main level also features the primary suite with two large closets, a full bath, and a versatile bonus room ideal for an office, nursery, or sitting area. The floor plan offers true functionality with main-floor laundry, a double side-entry garage, and a flat driveway ideal for bikes or basketball. Upstairs are two additional bedrooms and a full bath. The unfinished lower level allows room for future expansion or ample storage. Recent updates include new interior paint, newer roof (approximately 4 years old), and all new windows. Light, bright, and ready for new buyers, this home combines comfort and potential in a sought-after setting. While it backs to 435 and experiences some road noise, it is priced accordingly and represents a great value for location and size. Enjoy easy access to parks, trails, schools, shopping, restaurants, and healthcare, all just minutes away.

Directions
Quivira to 106th east to stop sign, turn right, home is on your right.
Subdivision
Oak Park Manor
City
Overland Park
County
Johnson, KS
Property Type
Residential / Single Family Residence
Listing Updated
Oct 31, 2025 at 12:10pm
MLS Number
2579383
Property Tax
$3,433
Home Owners Association
Yes
Disclaimer
The information displayed on this page is confidential, proprietary, and copyrighted information of Heartland Multiple Listing Service, Inc. (“Heartland MLS”). Copyright 2025, Heartland Multiple Listing Service, Inc. Heartland MLS, Elite Realty and Agent Jo do not make any warranty or representation concerning the timeliness or accuracy of the information displayed herein. In consideration for the receipt of the information on this page, the recipient agrees to use the information solely for the private non-commercial purpose of identifying a property in which the recipient has a good faith interest in acquiring.
The data relating to real estate displayed on this website comes in part from the Heartland Multiple Listing Service database compilation. The properties displayed on this website may not be all of the properties in the Heartland MLS database compilation, or all of the properties listed with other brokers participating in the Heartland MLS IDX program. Detailed information about the properties displayed on this website includes the name of the listing company.
Information is deemed reliable but is not guaranteed.

Copyright © 2025 ELITE Realty.