 
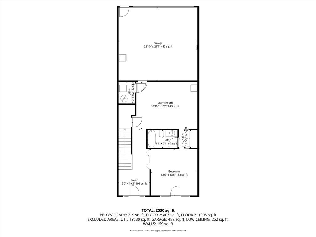
                Tucked between the Plaza and Loose Park, this Kirkwood townhome is one of only nine built and has that mix of privacy, comfort, and style that makes it stand out. The main level features a bedroom with French doors opening to a private patio, a Jack and Jill bath, and a flexible living area that could easily convert to an additional bedroom or office. The attached two-car garage provides secure, direct entry, and gated access leads to a private park with three beautiful fountains. A stunning staircase takes you to the showstopping second level, where a spacious kitchen with Viking appliances opens to a dining and living area. Step out to your private patio, the only unit with a straight view down the path to the community’s private fountain park. A large additional room on this level offers flexibility for extra dining or living space, and there is also a half bath. The layout was designed with the option to add an elevator, if ever desired. The top level includes a generous primary suite with a jetted tub, oversized shower, double vanity, and walk-in closet. You’ll also find another spacious bedroom with a private full bath and a dedicated laundry room on this floor. With 24-hour gated security, this home is ideal for those who travel frequently or simply love a low-maintenance, lock-and-leave lifestyle. Enjoy all of Kirkwood’s top-tier amenities including a pool, gym, party room, and concierge-level staff. HOA dues also cover trash pickup three times per week. This one truly checks every box for luxury, location, and lifestyle.
Copyright © 2025 ELITE Realty.