206 Cedarlane Drive, Wellsville, KS 66092

     
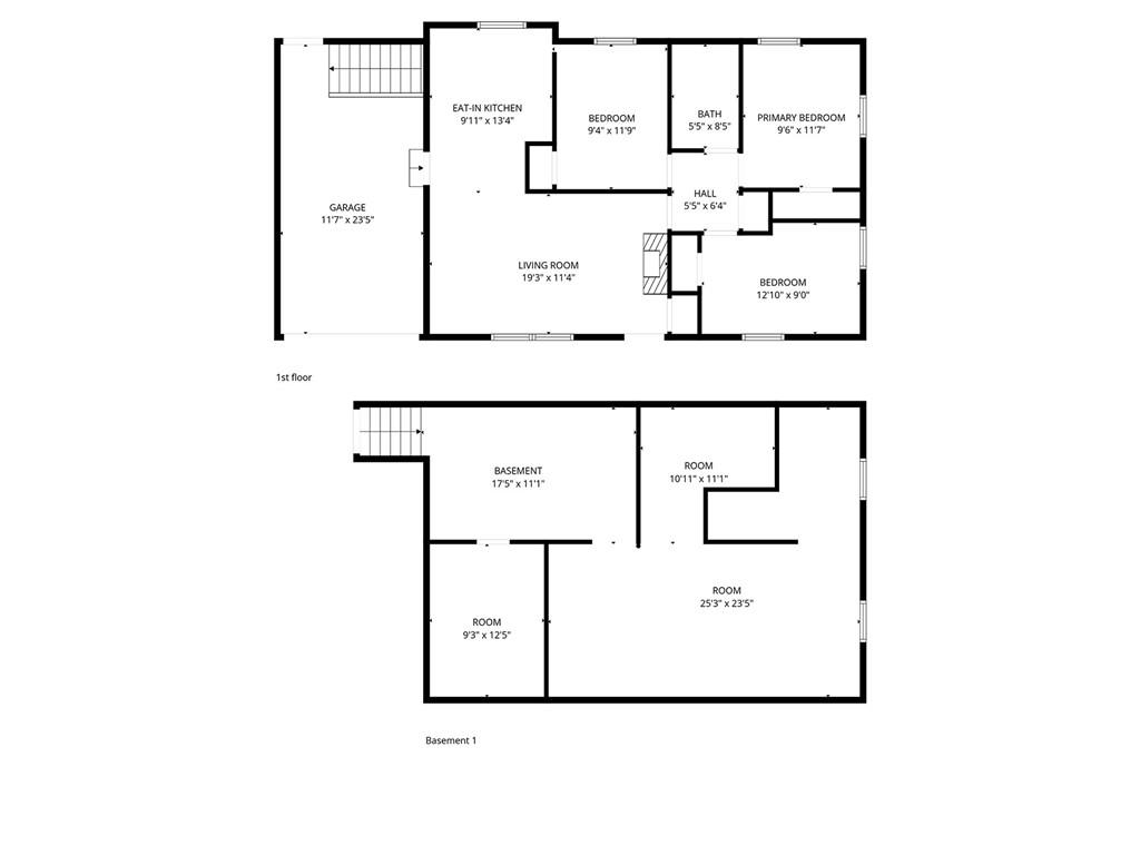
  • 3Beds
  •   
  • 1 Bath
  •  
  • 0½ Baths
  •  
  • 875Sq Ft
Mortgage Calculator

$230,000
 est. $1,140/mo

It's BIGGER than it LOOKS! This home is FOR SALE with an amazing opportunity to gain equity as you finish the lower level. This cozy ranch home already offers comfortable living space with 3 bedrooms and 1 full bathroom on the main level and large L shaped living room and kitchen and Endless hot water. The basement has framing started so bring your finishing ideas and complete it how YOU would like. Located in Glenwood Acres this home sits on a fenced in corner lot with a 20x20 detached garage and street access. (back fence completed after storm damage- no more orange construction fence) New exterior paint complete just prior to listing- updated light fixtures inside and out, 2 brand new garage doors and gutters installed prior to listing. (Roof is approximately 5 years old.)

Directions
To Wellsville Exit from I35- North on 33 highway, aka Poplar street, to 1st Street. Turn left or west on 1st Street. Go to Maple TERRACE and Turn RIGHT (north). Home is on the corner of Cedarlane Drive and Maple Terrace.
Subdivision
Glenwood Acres
City
Wellsville
County
Franklin, KS
Property Type
Residential / Single Family Residence
Listing Updated
Dec 15, 2025 at 3:12pm
MLS Number
2588013
Property Tax
$3,312
Home Owners Association
No
Disclaimer
The information displayed on this page is confidential, proprietary, and copyrighted information of Heartland Multiple Listing Service, Inc. (“Heartland MLS”). Copyright 2025, Heartland Multiple Listing Service, Inc. Heartland MLS, Elite Realty and Agent Jo do not make any warranty or representation concerning the timeliness or accuracy of the information displayed herein. In consideration for the receipt of the information on this page, the recipient agrees to use the information solely for the private non-commercial purpose of identifying a property in which the recipient has a good faith interest in acquiring.
The data relating to real estate displayed on this website comes in part from the Heartland Multiple Listing Service database compilation. The properties displayed on this website may not be all of the properties in the Heartland MLS database compilation, or all of the properties listed with other brokers participating in the Heartland MLS IDX program. Detailed information about the properties displayed on this website includes the name of the listing company.
Information is deemed reliable but is not guaranteed.

Copyright © 2025 ELITE Realty.