9416 Northeast 97th Street, Kansas City, MO 64157

     
  • 4Beds
  •   
  • 3 Baths
  •  
  • 0½ Baths
  •  
  • 2,809Sq Ft
Mortgage Calculator

$560,000
 est. $2,676/mo

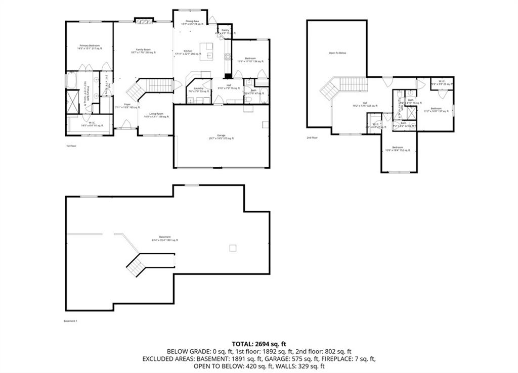
Welcome to this stunning Robertson Construction home featuring the popular “Hannah” floor plan—beautifully maintained and packed with upgrades! Step inside to discover real hardwood floors throughout the main level, complemented by stylish accent walls and a striking fireplace with stone extending all the way to the ceiling. The thoughtful design continues with custom cabinetry in the mudroom and elegant plantation shutters that elevate the entire home. The recent update include a brand-new roof and fresh exterior paint, offering peace of mind and exceptional curb appeal. The sellers also added convenient stairs off the deck, giving you easy access to the backyard. The exterior features a durable metal fence, perfect for pets, play, or privacy. The HUGE unfinished walkout lower level is a rare find—complete with double doors, making it ideal for storing lawn equipment, toys, a golf cart, or transforming into your future dream space. This home combines quality construction, modern upgrades, and unbeatable functionality.

Directions
291 N to 96th Street. Left on 96th. Right on N Denton Avenue. Left on 97th Street.
Subdivision
Hills of Montclair
City
Kansas City
County
Clay
Property Type
Residential / Single Family Residence
Listing Updated
Dec 13, 2025 at 3:12pm
MLS Number
2588071
Property Tax
$6,882
Home Owners Association
Yes
Disclaimer
The information displayed on this page is confidential, proprietary, and copyrighted information of Heartland Multiple Listing Service, Inc. (“Heartland MLS”). Copyright 2025, Heartland Multiple Listing Service, Inc. Heartland MLS, Elite Realty and Agent Jo do not make any warranty or representation concerning the timeliness or accuracy of the information displayed herein. In consideration for the receipt of the information on this page, the recipient agrees to use the information solely for the private non-commercial purpose of identifying a property in which the recipient has a good faith interest in acquiring.
The data relating to real estate displayed on this website comes in part from the Heartland Multiple Listing Service database compilation. The properties displayed on this website may not be all of the properties in the Heartland MLS database compilation, or all of the properties listed with other brokers participating in the Heartland MLS IDX program. Detailed information about the properties displayed on this website includes the name of the listing company.
Information is deemed reliable but is not guaranteed.

Copyright © 2025 ELITE Realty.