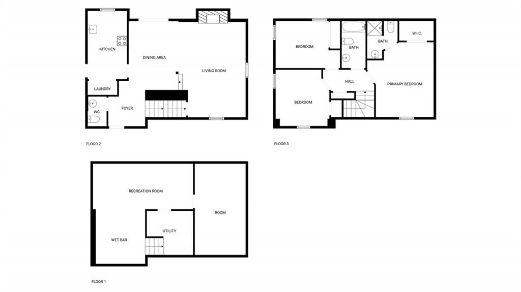
7518 76th Place, Kansas City, MO 64152

     
  • 3Beds
  •   
  • 2 Baths
  •  
  • 1½ Bath
  •  
  • 1,852Sq Ft
Mortgage Calculator

$307,000
 est. $1,380/mo

Welcome to this charming property that boasts a cozy fireplace, perfect for those chilly evenings. The neutral color paint scheme provides a calming ambiance throughout the home. The kitchen is a chef's dream with an accent backsplash and all stainless steel appliances. Step outside to enjoy the deck and patio, perfect for entertaining or simply relaxing. The fenced in backyard ensures privacy outdoor living space. The home has been freshly painted inside, adding to its appeal. This property is a must-see for those seeking a comfortable and stylish home. Included 100-Day Home Warranty with buyer activation

Directions
Head west on NW Belvidere Pkwy toward N Avalon St Turn right onto N Congress Ave Turn right onto NW 76 Pl
Subdivision
Platte Ridge
City
Kansas City
County
Platte
Property Type
Residential / Single Family Residence
Listing Updated
Dec 14, 2025 at 7:12pm
MLS Number
2589708
Property Tax
$2,723
Home Owners Association
No
Disclaimer
The information displayed on this page is confidential, proprietary, and copyrighted information of Heartland Multiple Listing Service, Inc. (“Heartland MLS”). Copyright 2025, Heartland Multiple Listing Service, Inc. Heartland MLS, Elite Realty and Agent Jo do not make any warranty or representation concerning the timeliness or accuracy of the information displayed herein. In consideration for the receipt of the information on this page, the recipient agrees to use the information solely for the private non-commercial purpose of identifying a property in which the recipient has a good faith interest in acquiring.
The data relating to real estate displayed on this website comes in part from the Heartland Multiple Listing Service database compilation. The properties displayed on this website may not be all of the properties in the Heartland MLS database compilation, or all of the properties listed with other brokers participating in the Heartland MLS IDX program. Detailed information about the properties displayed on this website includes the name of the listing company.
Information is deemed reliable but is not guaranteed.

Copyright © 2025 ELITE Realty.