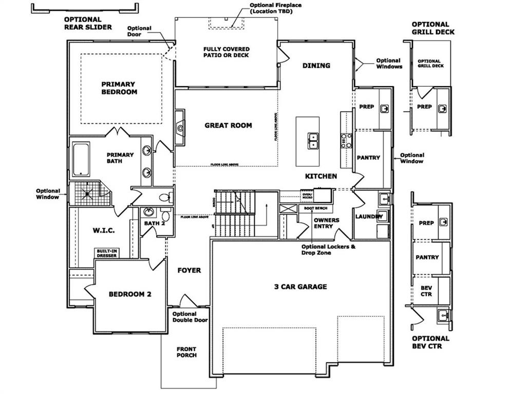
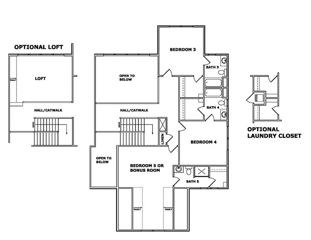
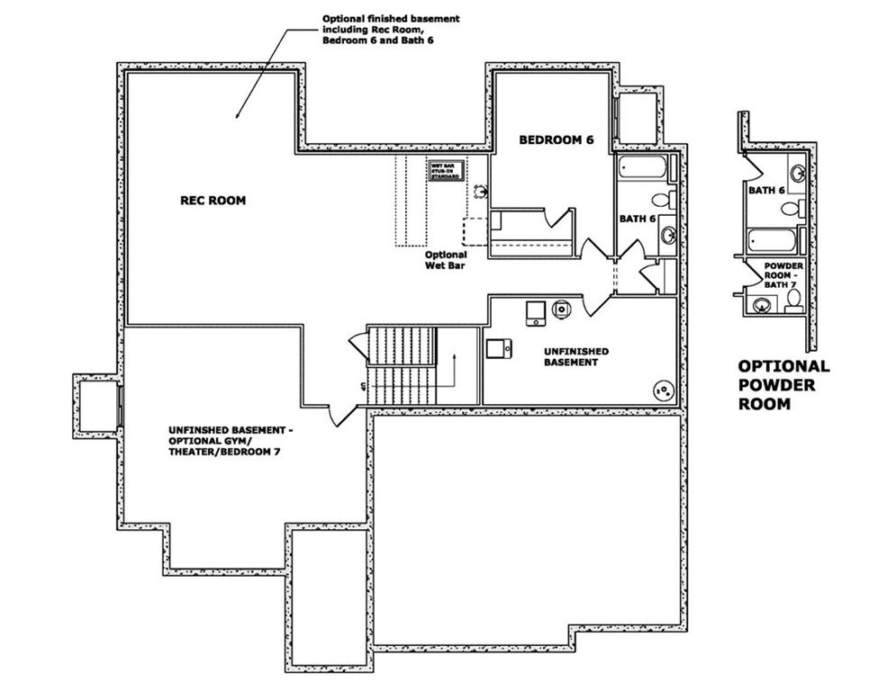
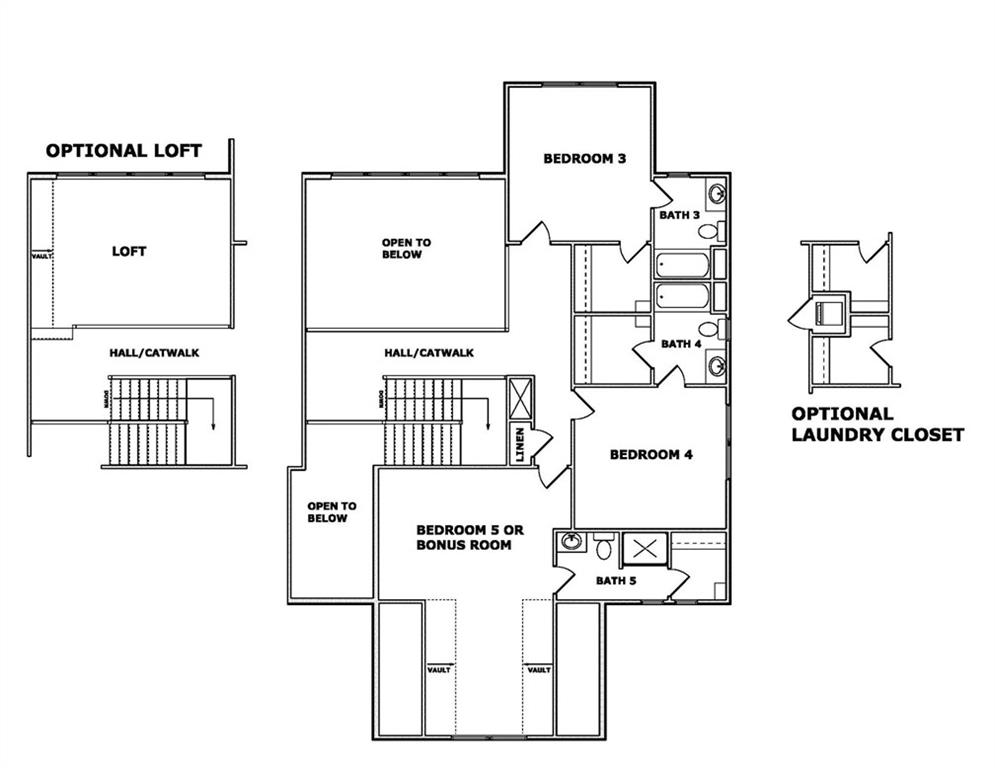
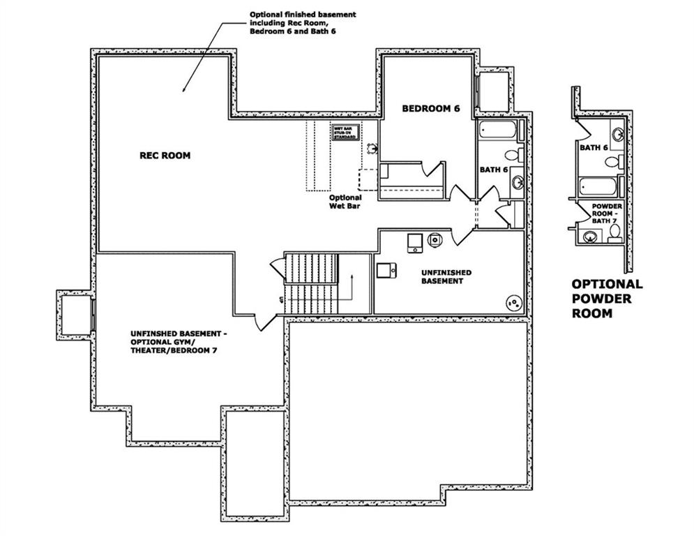
NEARLY FINISHED with February 2026 completion! Introducing the Ashton, Inspired Homes' newest plan! This fantastic 1.5 Story boasts nearly 5,000 SF of finished space and is situated on a walkout lot backing to greenspace! Thoughtfully designed with details including elevated ceiling heights with an 18' entry and 12' great room & kitchen, multi-use kitchen workspaces with bar & prep areas, and a luxurious primary bath and closet. The second story features a raised loft + 3 bedrooms, each with their OWN private bathroom. AND a finished basement with Rec/Bed/Bath, wet bar AND dedicated WORKOUT ROOM!! Inspired Homes also includes extra deep garages, 8’ garage & front doors, irrigation systems, garage openers, low-e Pella windows & doors, custom wood cabinetry throughout, stylish accent walls & ceiling trim, and so much more! Just a short walk to the pool and amenity complex (Opening Spring 2026!) and trails leading to playground, gaga ball, sand volleyball and pickleball courts. Come be one of the first to tour this exciting new plan!
Copyright © 2025 ELITE Realty.