8952 Ginger Street, Lenexa, KS 66227

     
  • 4Beds
  •   
  • 4 Baths
  •  
  • 1½ Bath
  •  
  • 4,304Sq Ft
Mortgage Calculator

$1,925,000
 est. $9,492/mo

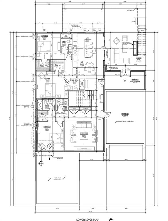
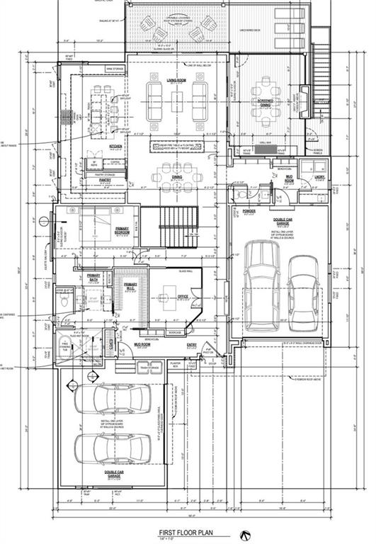
Foundation Stage as of 12/29/25 - The Ascaya by M.B. Development - BACKS TO WATER with breathtaking views of the Kansas sunsets. This reverse 1.5 story masterpiece is being constructed along one of WaterCrest Landing's most prestigious lined streets with luxury homes! Main level living includes the primary suite, private office/den, two mud rooms / drop zones, main floor laundry, spacious great room and adjacent formal dining room. Entertaining in the walk-out lower level is a breeze in this floor plan with the wet bar area and family room plus the bedroom layout that also provides guests to have their own space if need be. 4 car garage (2 doubles), cul-de-sac location, exquisite views of the sunset....it doesn't get any better than this!!

Directions
K-7 & Prairie Star Pkwy, East to Monticello round about, North to 90th Terr, West to Freedom Street, North to Ginger (1st left), West to home on South side of the street.
Subdivision
WaterCrest Landing
City
Lenexa
County
Johnson, KS
Property Type
Residential / Single Family Residence
Listing Updated
Feb 14, 2026 at 11:02am
MLS Number
2593199
Property Tax
$27,185
Home Owners Association
Yes - WaterCrest Landing HOA
Disclaimer
The information displayed on this page is confidential, proprietary, and copyrighted information of Heartland Multiple Listing Service, Inc. (“Heartland MLS”). Copyright 2026, Heartland Multiple Listing Service, Inc. Heartland MLS, Elite Realty and Agent Jo do not make any warranty or representation concerning the timeliness or accuracy of the information displayed herein. In consideration for the receipt of the information on this page, the recipient agrees to use the information solely for the private non-commercial purpose of identifying a property in which the recipient has a good faith interest in acquiring.
The data relating to real estate displayed on this website comes in part from the Heartland Multiple Listing Service database compilation. The properties displayed on this website may not be all of the properties in the Heartland MLS database compilation, or all of the properties listed with other brokers participating in the Heartland MLS IDX program. Detailed information about the properties displayed on this website includes the name of the listing company.
Information is deemed reliable but is not guaranteed.

Copyright © 2026 ELITE Realty.