213-215 W 5TH Street, Maryville, MO 64468

Mortgage Calculator

$179,900
 est. $867/mo

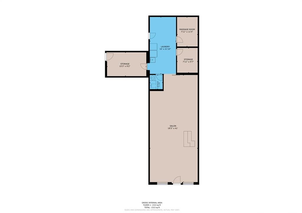
THE SPOT for a business! Next to the post office, the visibility is incredible. 1,000 passersby daily. With the new 'Alleyway Corridor' well underway, this building is ideal for retail or service-oriented businesses. This 2,700 sq ft free-standing building (no shared walls) is divided into two spaces and is currently housing a beauty spa (1,600 sq ft) and a bookstore (1,100 sq ft). Both businesses are doing very well! With 10 parking spaces available in front and two in the back, this location is desirable for its convenient access. Take a close look at the photos, enjoy the EXCLUSIVE Virtual Tours, and start your VISION!

Directions
From Main Street: Two blocks West on 5th, building on the North.
Subdivision
None
City
Maryville
County
Nodaway
Property Type
Commercial Sale / Retail
Listing Updated
Jan 13, 2026 at 5:01pm
MLS Number
2594950
Property Tax
$2,300
Zoning
$C
Disclaimer
The information displayed on this page is confidential, proprietary, and copyrighted information of Heartland Multiple Listing Service, Inc. (“Heartland MLS”). Copyright 2026, Heartland Multiple Listing Service, Inc. Heartland MLS, Elite Realty and Agent Jo do not make any warranty or representation concerning the timeliness or accuracy of the information displayed herein. In consideration for the receipt of the information on this page, the recipient agrees to use the information solely for the private non-commercial purpose of identifying a property in which the recipient has a good faith interest in acquiring.
The data relating to real estate displayed on this website comes in part from the Heartland Multiple Listing Service database compilation. The properties displayed on this website may not be all of the properties in the Heartland MLS database compilation, or all of the properties listed with other brokers participating in the Heartland MLS IDX program. Detailed information about the properties displayed on this website includes the name of the listing company.
Information is deemed reliable but is not guaranteed.

Copyright © 2026 ELITE Realty.