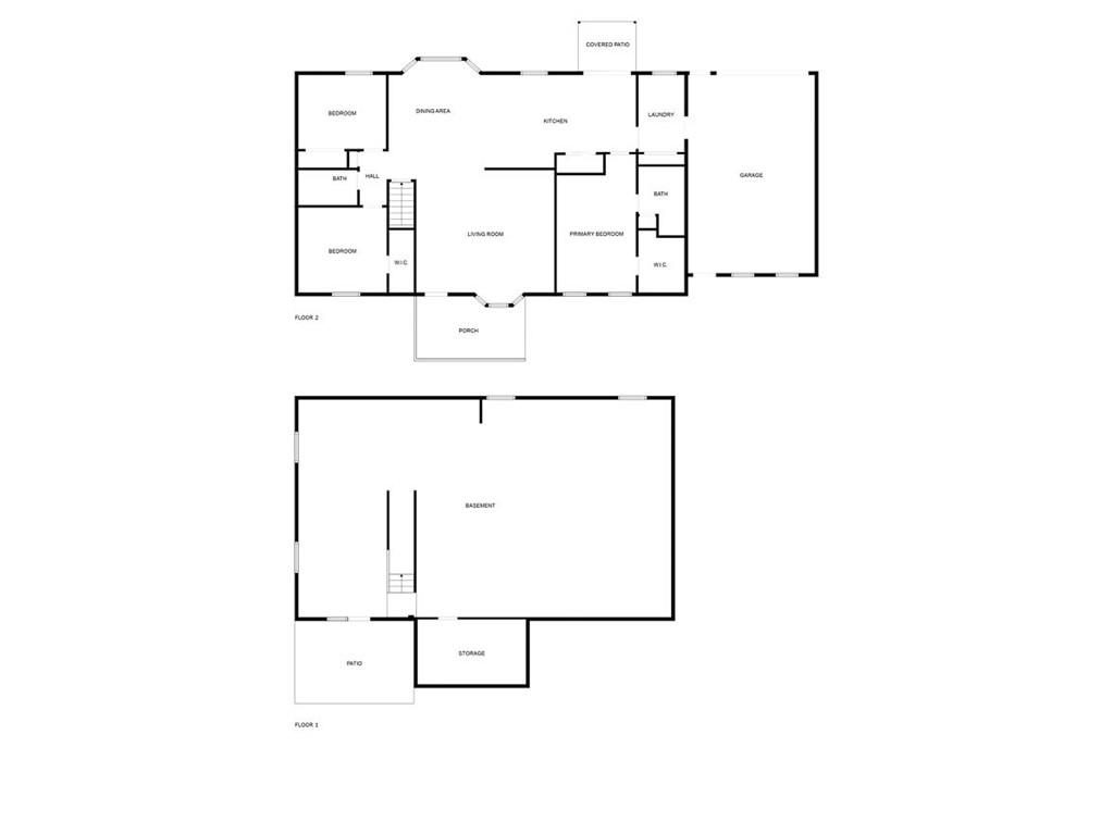
Welcome to this thoughtfully designed custom ranch-style home offering over 1,700+/- sqft of main-level living! Featuring 3 spacious bedrooms—including a split floor plan with the primary suite on one side and two additional bedrooms on the other—this layout offers privacy and comfort for the whole family. The heart of the home is the expansive kitchen, complete with custom oak cabinetry, upgraded storage solutions, double oven and all appliances, and pantry. Enjoy the convenience of a main-level laundry room and an attached 2-car garage with tons of overhead storage. This home was built with accessibility in mind, offering wide doorways and easy-flow spaces ideal for handicap needs. The full walk-out basement mirrors the main level with 9 ft ceilings and is already plumbed for a bathroom—perfect for adding bedrooms, a rec room, or even an in-law suite. Tons of potential for added space and equity, as well as a storm shelter for Kansas weather. Located just minutes from charming downtown amenities, the community pool, gas station, and local stores, with a quick commute to Topeka—this home checks all the boxes for comfort, space, and convenience! This home has been virtually staged to illustrate its potential.
Copyright © 2026 ELITE Realty.