608 W Maple Street, Plattsburg, MO 64477

     
  • 3Beds
  •   
  • 2 Baths
  •  
  • 0½ Baths
  •  
  • 2,176Sq Ft
Mortgage Calculator

$225,000
 est. $997/mo

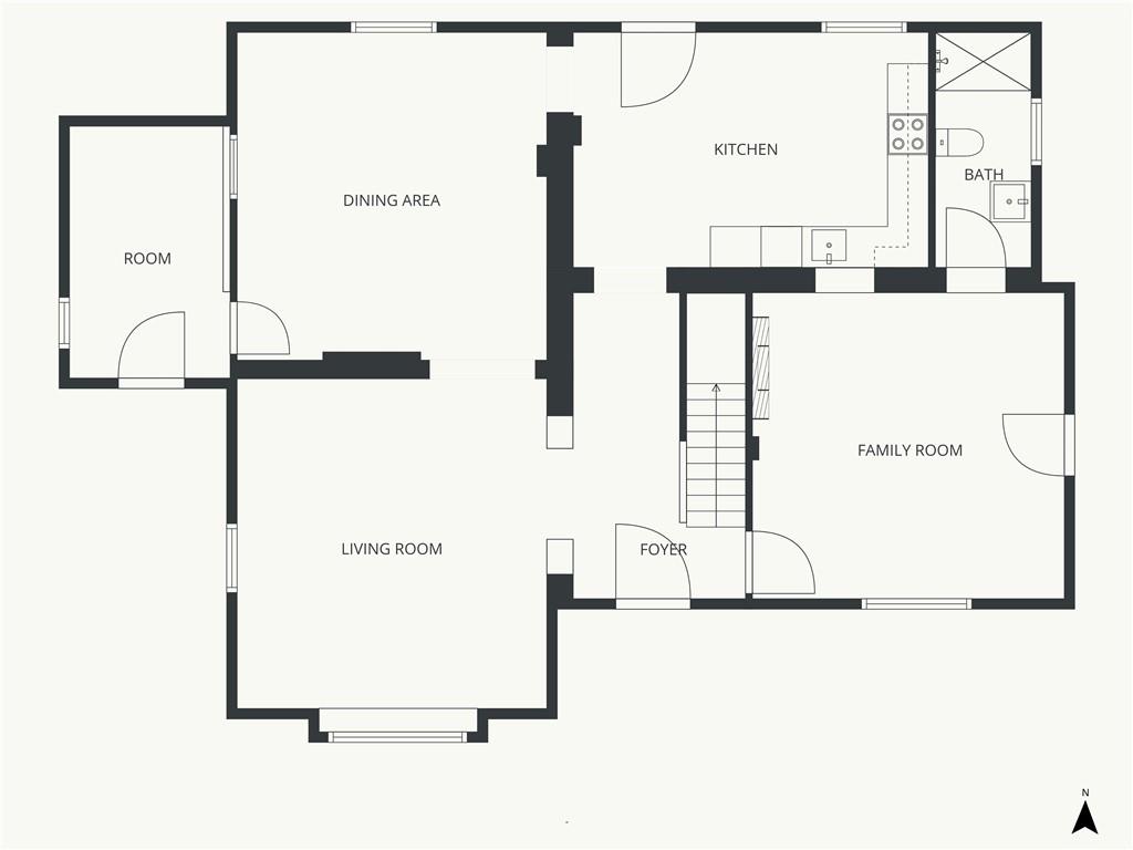
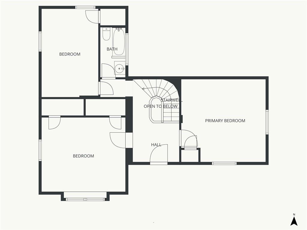
CHARMING HISTORIC HOME FULL OF CHARACTER! Classic residence showcases the craftsmanship of a bygone era and now offers a wonderful opportunity to update and make it your own. Inviting covered wraparound front porch and balcony! Inside, soaring 10-foot ceilings and a stunning hand-carved staircase create a warm and welcoming first impression. Main level features multiple living spaces ideal for everyday living and entertaining, along with a convenient main-floor laundry. Upstairs find three spacious bedrooms and a full bath, plus access to a spacious balcony overlooking the wraparound porch—an ideal spot to relax. Large backyard includes a privacy fence and deck providing endless opportunities for time outdoors. Built with impressive two-foot-thick solid brick walls covered in plaster, this home offers timeless character and solid construction. Bring your vision and enjoy the charm and history this special home has to offer--WELCOME HOME!

Directions
116 Highway West, Y Highway North, Maple St, East to home.
Subdivision
Other
City
Plattsburg
County
Clinton
Property Type
Residential / Single Family Residence
Listing Updated
Mar 13, 2026 at 1:03am
MLS Number
2606891
Property Tax
$1,821
Home Owners Association
No
Disclaimer
The information displayed on this page is confidential, proprietary, and copyrighted information of Heartland Multiple Listing Service, Inc. (“Heartland MLS”). Copyright 2026, Heartland Multiple Listing Service, Inc. Heartland MLS, Elite Realty and Agent Jo do not make any warranty or representation concerning the timeliness or accuracy of the information displayed herein. In consideration for the receipt of the information on this page, the recipient agrees to use the information solely for the private non-commercial purpose of identifying a property in which the recipient has a good faith interest in acquiring.
The data relating to real estate displayed on this website comes in part from the Heartland Multiple Listing Service database compilation. The properties displayed on this website may not be all of the properties in the Heartland MLS database compilation, or all of the properties listed with other brokers participating in the Heartland MLS IDX program. Detailed information about the properties displayed on this website includes the name of the listing company.
Information is deemed reliable but is not guaranteed.

Copyright © 2026 ELITE Realty.