4904 E 23rd Street, Kansas City, MO 64127

     
  • 3Beds
  •   
  • 1 Bath
  •  
  • 1½ Bath
  •  
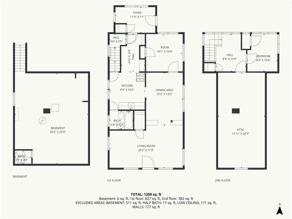
  • 1,311Sq Ft
Mortgage Calculator

$165,000
 est. $671/mo

Welcome to 4904 E 23rd St in Kansas City, Missouri, a beautifully updated home that blends character, functionality, and modern upgrades. This 3-bedroom, 1.5-bath home offers 1,158 square feet of comfortable living space, plus a versatile non-conforming bedroom or flex space Step inside to find a newly refinished kitchen featuring updated finishes that make both everyday living and entertaining feel effortless. The remodeled bathrooms bring a fresh, modern touch, giving the home a clean and move-in-ready feel throughout. The layout is practical and inviting, with plenty of natural light and flexible space to fit your lifestyle. Conveniently located just minutes from downtown Kansas City, this home provides quick access to major highways, making commuting simple. You’re also close to local parks, schools, and neighborhood amenities, with easy access to shopping, dining, and entertainment options in the surrounding area.

Directions
Take I-29 S and I-70 E to E 23rd St in Kaw Township. Take exit 4C from I-70 E/US-24 E/US-40 E Turn left onto E 23rd St
Subdivision
Corbin Place
City
Kansas City
County
Jackson
Property Type
Residential / Single Family Residence
Listing Updated
Apr 23, 2026 at 2:04pm
MLS Number
2607917
Property Tax
$611
Home Owners Association
No
Disclaimer
The information displayed on this page is confidential, proprietary, and copyrighted information of Heartland Multiple Listing Service, Inc. (“Heartland MLS”). Copyright 2026, Heartland Multiple Listing Service, Inc. Heartland MLS, Elite Realty and Agent Jo do not make any warranty or representation concerning the timeliness or accuracy of the information displayed herein. In consideration for the receipt of the information on this page, the recipient agrees to use the information solely for the private non-commercial purpose of identifying a property in which the recipient has a good faith interest in acquiring.
The data relating to real estate displayed on this website comes in part from the Heartland Multiple Listing Service database compilation. The properties displayed on this website may not be all of the properties in the Heartland MLS database compilation, or all of the properties listed with other brokers participating in the Heartland MLS IDX program. Detailed information about the properties displayed on this website includes the name of the listing company.
Information is deemed reliable but is not guaranteed.

Copyright © 2026 ELITE Realty.