6417 N Kirkwood Avenue, Kansas City, MO 64151

     
  • 3Beds
  •   
  • 2 Baths
  •  
  • 1½ Bath
  •  
  • 1,654Sq Ft
Mortgage Calculator

$335,000
 est. $1,536/mo

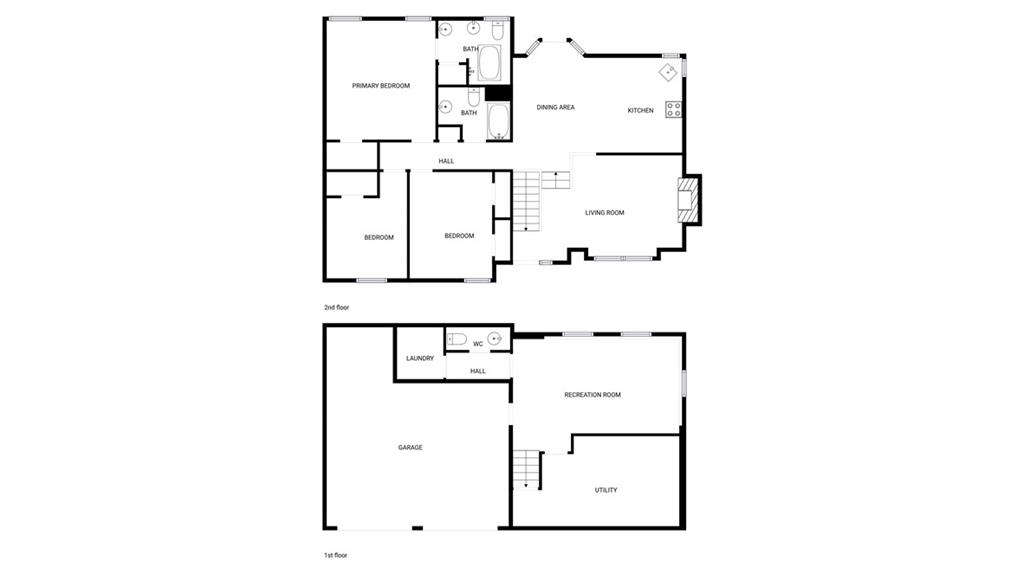
Step into the layout at 6417 N Kirkwood Ave where a fireplace stands in the main area. The kitchen features all stainless steel appliances and an accent backsplash. The primary bathroom contains double sinks. Exterior access leads to a deck and a fenced in backyard. The interior shows fresh interior paint and new flooring throughout home. This residence consists of these specific finished components.. Included 100-Day Home Warranty with buyer activation

Directions
Head toward NW Roanridge Rd. Turn left onto NW Roanridge Rd. Turn right onto N Kirkwood Ave
Subdivision
Trafalgar Square
City
Kansas City
County
Platte
Property Type
Residential / Single Family Residence
Listing Updated
Mar 28, 2026 at 7:03pm
MLS Number
2609338
Property Tax
$3,338
Home Owners Association
No
Disclaimer
The information displayed on this page is confidential, proprietary, and copyrighted information of Heartland Multiple Listing Service, Inc. (“Heartland MLS”). Copyright 2026, Heartland Multiple Listing Service, Inc. Heartland MLS, Elite Realty and Agent Jo do not make any warranty or representation concerning the timeliness or accuracy of the information displayed herein. In consideration for the receipt of the information on this page, the recipient agrees to use the information solely for the private non-commercial purpose of identifying a property in which the recipient has a good faith interest in acquiring.
The data relating to real estate displayed on this website comes in part from the Heartland Multiple Listing Service database compilation. The properties displayed on this website may not be all of the properties in the Heartland MLS database compilation, or all of the properties listed with other brokers participating in the Heartland MLS IDX program. Detailed information about the properties displayed on this website includes the name of the listing company.
Information is deemed reliable but is not guaranteed.

Copyright © 2026 ELITE Realty.