1824 Homestead Drive, Liberty, MO 64068

     
  • 4Beds
  •   
  • 3 Baths
  •  
  • 0½ Baths
  •  
  • 3,166Sq Ft
Mortgage Calculator

$695,000
 est. $3,276/mo

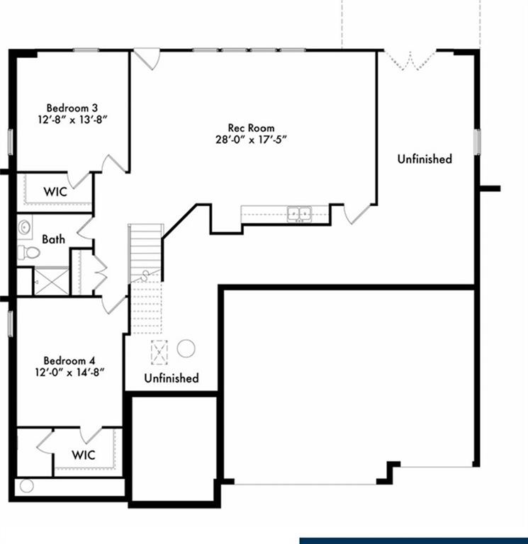
Fabulous reverse plan by Hearthside Homes - which sits on lot 93 in Homestead - offering the perfect blend of style and functionality! The main level features two bedrooms plus a private office, along with an open-concept layout designed for modern living. The chef’s kitchen is a true standout, seamlessly connecting to the great room and leading out to a spacious deck—ideal for entertaining or relaxing. The luxurious primary suite boasts a spa-like bath complete with a soaker tub and separate shower. The finished lower level is an entertainer’s dream, featuring a large rec room, stylish bar area, and two additional bedrooms—perfect for guests or family. This home is built with double-wall construction, I-joist floor systems, and engineered roof trusses for strength and durability. Every Hearthside home also includes a video-recorded sewer scope, third-party duct cleaning, and a third-party inspection to help ensure quality and peace of mind. Hearthside Homes has been building in the Kansas City area since 1987 and is known for quality construction and a streamlined building experience. Hearthside includes an exceptional warranty package: 1 year of whole-house coverage, 2 years of mechanical systems protection, and a 10-year major structural warranty.

Directions
35 North to Liberty Parkway - East to Withers - North to Homestead Drive.
Subdivision
Homestead
City
Liberty
County
Clay
Property Type
Residential / Single Family Residence
Listing Updated
Mar 30, 2026 at 12:03pm
MLS Number
2609730
Property Tax
$8,000
Home Owners Association
Yes - Homestead HOA
Disclaimer
The information displayed on this page is confidential, proprietary, and copyrighted information of Heartland Multiple Listing Service, Inc. (“Heartland MLS”). Copyright 2026, Heartland Multiple Listing Service, Inc. Heartland MLS, Elite Realty and Agent Jo do not make any warranty or representation concerning the timeliness or accuracy of the information displayed herein. In consideration for the receipt of the information on this page, the recipient agrees to use the information solely for the private non-commercial purpose of identifying a property in which the recipient has a good faith interest in acquiring.
The data relating to real estate displayed on this website comes in part from the Heartland Multiple Listing Service database compilation. The properties displayed on this website may not be all of the properties in the Heartland MLS database compilation, or all of the properties listed with other brokers participating in the Heartland MLS IDX program. Detailed information about the properties displayed on this website includes the name of the listing company.
Information is deemed reliable but is not guaranteed.

Copyright © 2026 ELITE Realty.