4514 E 113th Street, Kansas City, MO 64137

     
  • 3Beds
  •   
  • 2 Baths
  •  
  • 1½ Bath
  •  
  • 1,847Sq Ft
Mortgage Calculator

$180,000
 est. $889/mo

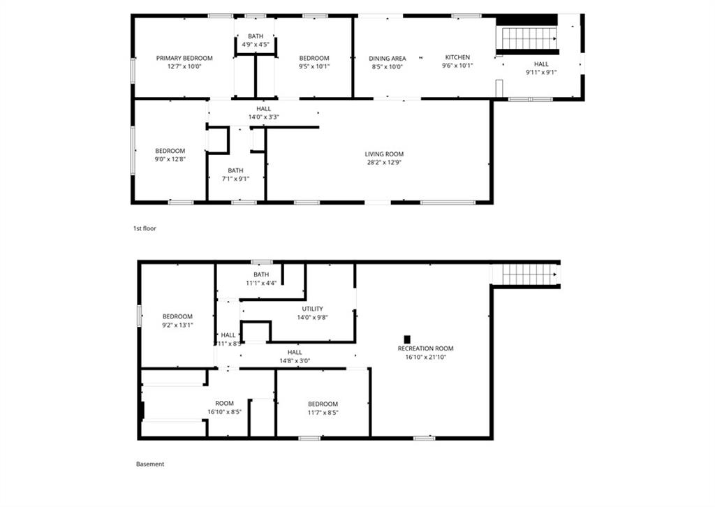
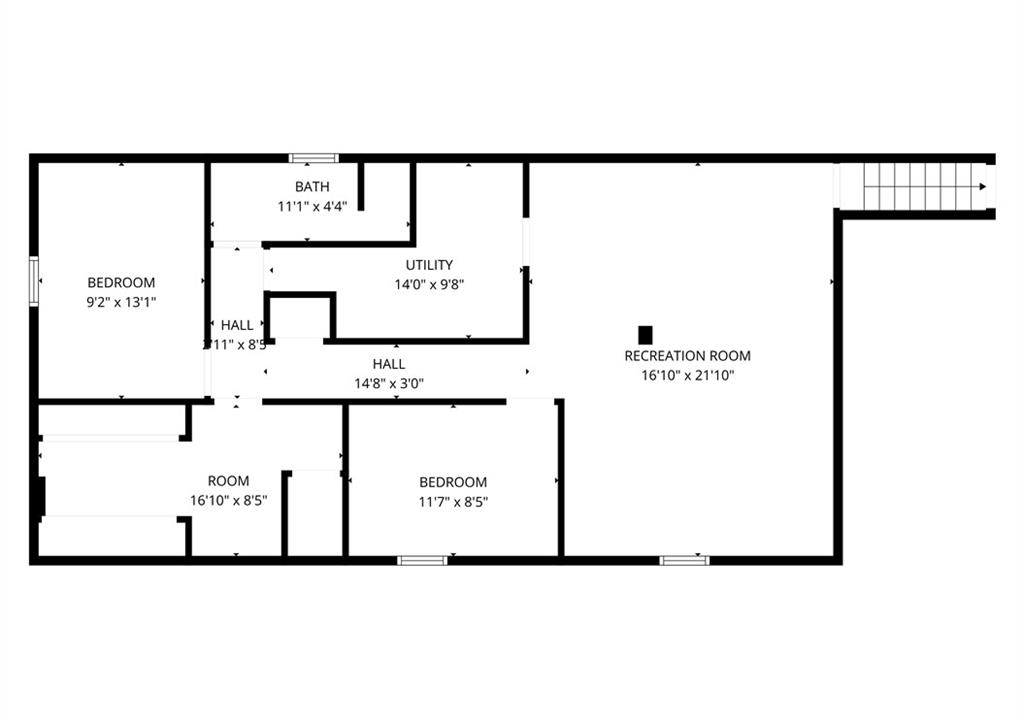
Excellent opportunity for investors or buyers seeking sweat equity in this 3 bed, 3 bath ranch with an attached 2-car garage and finished basement. Situated on a desirable corner lot, the home offers a functional layout with strong bones throughout and great potential for updates. The main level features comfortable living space that flows to a large rear deck, perfect for outdoor enjoyment and entertaining. The finished basement adds additional usable square footage and flexibility for recreation, office, or guest space. While the home does need aesthetic updates, it provides a solid foundation to customize and build value. Utilities are currently in process and not fully active at this time—please bring a flashlight for showings. Property is being sold as-is and presents a strong opportunity to create value in a well-located ranch home with ample space inside and out.

Directions
From Triangle-I-435, I-470 go South on 71 Hwy/I-49 to First Exit-Red Bridge Road, W to Elmwood, S to 113th St, W to Property.
Subdivision
Terrace Lake Gardens
City
Kansas City
County
Jackson
Property Type
Residential / Single Family Residence
Listing Updated
Apr 25, 2026 at 4:04am
MLS Number
2616096
Property Tax
$2,550
Home Owners Association
No
Disclaimer
The information displayed on this page is confidential, proprietary, and copyrighted information of Heartland Multiple Listing Service, Inc. (“Heartland MLS”). Copyright 2026, Heartland Multiple Listing Service, Inc. Heartland MLS, Elite Realty and Agent Jo do not make any warranty or representation concerning the timeliness or accuracy of the information displayed herein. In consideration for the receipt of the information on this page, the recipient agrees to use the information solely for the private non-commercial purpose of identifying a property in which the recipient has a good faith interest in acquiring.
The data relating to real estate displayed on this website comes in part from the Heartland Multiple Listing Service database compilation. The properties displayed on this website may not be all of the properties in the Heartland MLS database compilation, or all of the properties listed with other brokers participating in the Heartland MLS IDX program. Detailed information about the properties displayed on this website includes the name of the listing company.
Information is deemed reliable but is not guaranteed.

Copyright © 2026 ELITE Realty.